WECOMXB Q5N, WECOMXB Q8N Elevator Light Curtain

1.Performance Parameter
NO. |
Items |
Performance Parameter |
|
1 |
Mpdel |
WECOMXB-Q5N |
WECOMXB-Q8N |
2 |
Infra red dioeds range |
48mm |
|
3 |
Minimum detecting objection |
≤50mm |
|
4 |
Number of Infra red diode |
36 Pair Diodes |
40 Pair Diodes |
5 |
Scanning beams |
106-174beams |
118-194beams |
6 |
The highest detecting range |
1665mm |
1855mm |
7 |
The lowest detecting range |
20mm |
|
8 |
Detecting range |
0~4000mm |
|
9 |
Response time |
≤69ms |
≤73ms |
10 |
Recovery time |
≤1.5s |
|
11 |
Vertical tolerance |
±15mm/7° |
|
12 |
Horizontal tolerance |
±3mm/5° |
|
13 |
Output mode |
1NO+1NC capacity 120VAC 1A |
|
14 |
Working voltage |
185—290VAC |
|
15 |
Protection level |
IP54 |
|
16 |
Light immunity |
>100,000LUX |
|
17 |
EMC |
EN12015, EN12016 |
|
18 |
LED Interpretation |
1)Red LED is light in receiver when shielded |
|
19 |
Powered LED Interpretation |
1)Yellow LED indicator is in receiver |
|
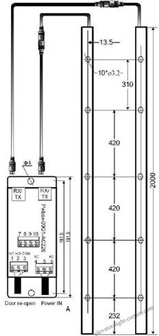
2.Beams Designing And Connection System


TX & RX distance less than 400 mm: 106beams / 118beams;TX & RX distance more than 400 mm: 174beams / 194beams.
WECOMXB Q5N Q8N SERIES elevator light curtain door detectors completely conform to EN 81-20 European standard.The details are:
1)The protective device shall cover the opening over the distance between at least 25mm and 1600mm above the car door sill;
2)The protective device shall be capable of detecting obstacles minimum of 50mm diameter;
3)The protective device may be rendered inoperative in the last 20mm of door closing;
4) In case of failure, or deactivation of the protective device, the kinetic energy of the doors shall be limited to 4J
